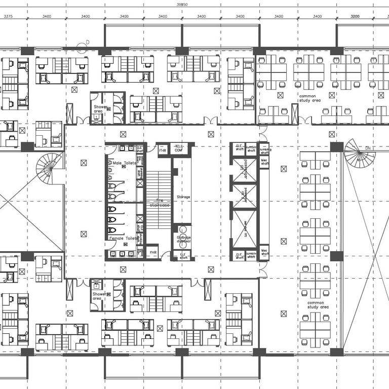
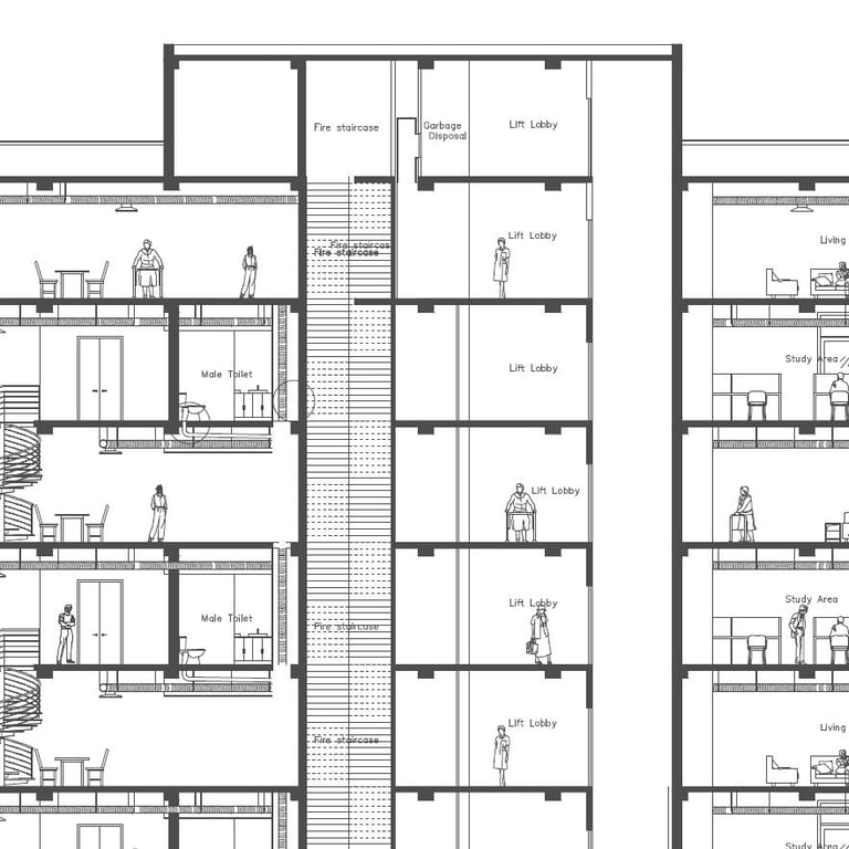
Transforming the Lovett Tower into intergenerational student housing aims to address critical mental health challenges among students by creating an environment that fosters social connections, well-being, and academic success. By integrating shared spaces for communal activities on lower floors and quieter study areas with private living cubes on upper levels, the design reduces isolation for both students and older adults. The use of exposed materials such as steel, titanium cement, and brick, along with steel I-beams and bracings, ensures affordability while adding aesthetic appeal. These thoughtful design choices promote connectivity, enhance living conditions, and provide financial and lifestyle support, creating a vibrant, inclusive community.


Adaptive Reuse
Lovett Tower converted as a student accommodation

