The Colombo City Centre (CCC) is a major development in the heart of Colombo. It features a 50-story tower with 200 apartments, a 190-room Next Hotel Colombo, and 230,000 sq. ft. of retail space. The development blends modern design with Sri Lanka’s cultural heritage and offers luxurious living, shopping, dining, and entertainment. It also includes The Residences, 192 high-end apartments, and The Mall, Sri Lanka’s largest shopping destination. The project represents Colombo’s transformation into a dynamic global city.
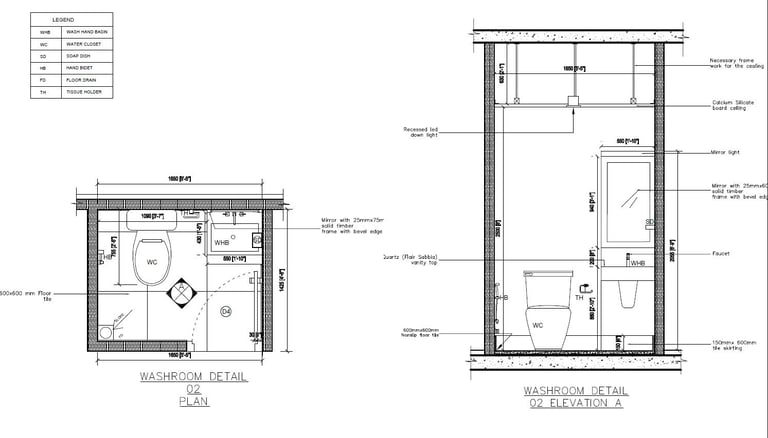
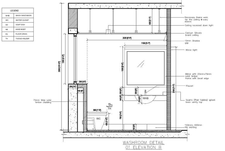
Involvement - As a trainee, I was responsible for producing detailed drawings for utilities and door details for a corporate office for a retail manager during the construction phase.
Collaborated with Architect and interior designer to produce construction drawings in accordance with standard architectural practices.
Conducted site visits to take accurate physical measurements.

