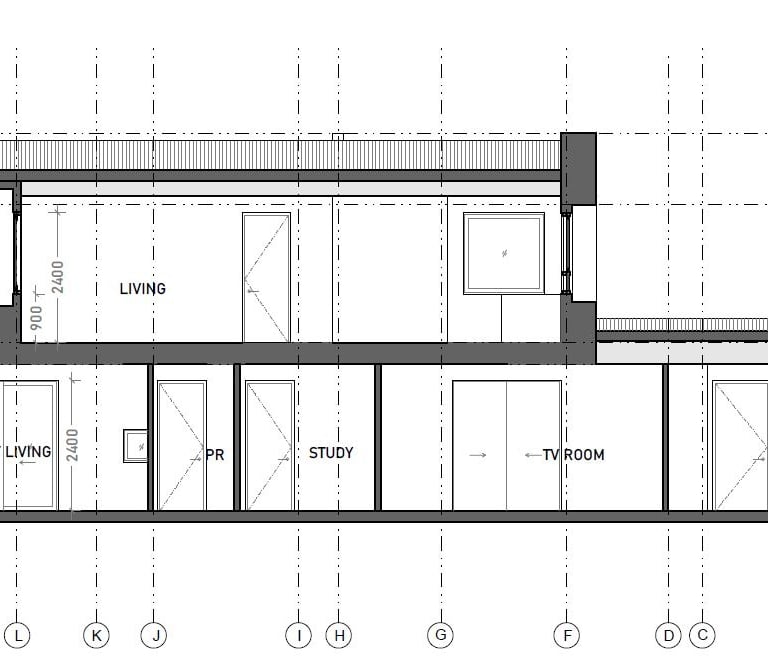
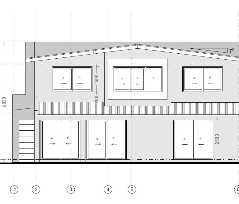
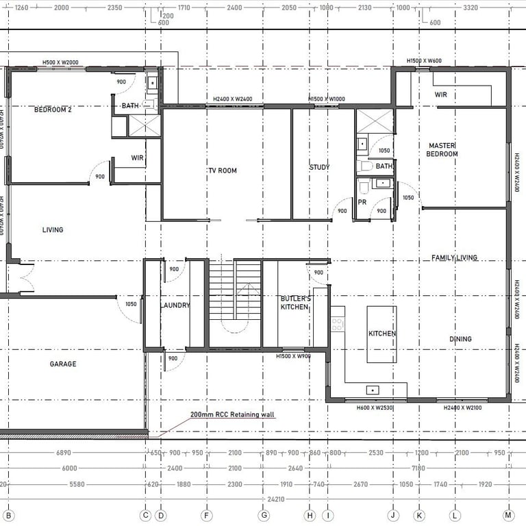
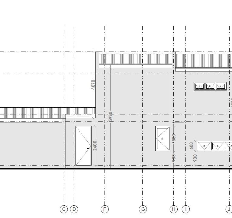
Involvement - Created BA drawings with accuracy, showcasing technical skills and attention to detail and 3d modeling.
prioritize tasks and meet project deadlines effectively.
Collaborated with builder to gather and interpret client requirements, translating them into Building Approval (BA) drawings that comply with building regulations.
Created 3D models to visually communicate design concepts and ensure client understanding and satisfaction.


Lot 14
Personalized House



