A luxury residence featuring elevated spaces overlooking lush tropical gardens and expansive paddy fields. The interiors are fully customized, with bespoke furniture, curated accessories, and commissioned artwork tailored to enhance each space. Thoughtfully selected soft furnishings complement the design, creating an atmosphere of refined comfort and seamless harmony.
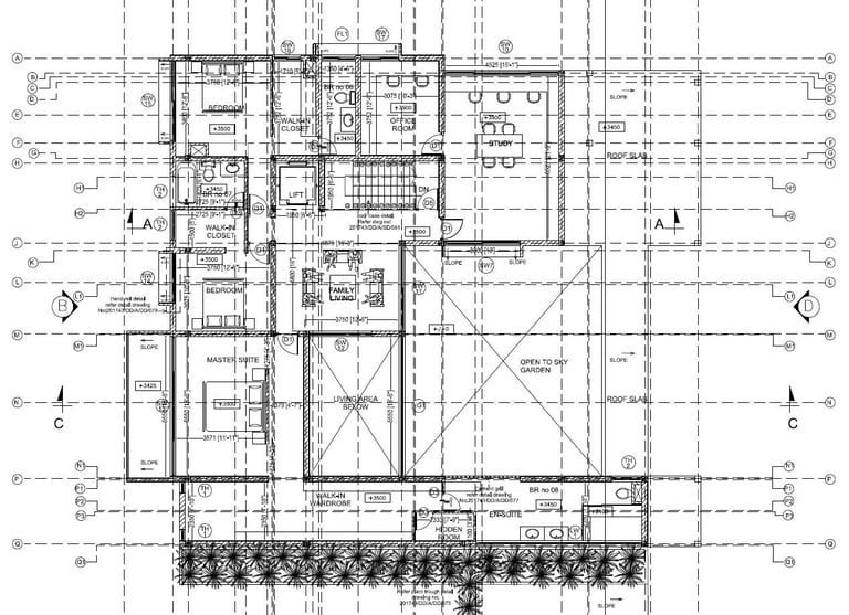
Involvement - As a trainee, I was responsible for preparing tender drawings, and construction drawings and actively participating in the tender process contributing to the successful completion of this project for my undergraduate training submission.
  • Collaborated with principal architect and other consultants to produce construction drawings in accordance with standard architectural practices.
  • Actively engaged in the tender process by obtaining and evaluating quotations from suppliers.
  • Collaborated with multidisciplinary professionals to resolve project issues.

Malambe

Personalized House

(KWA)