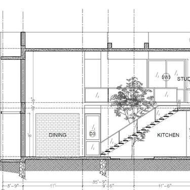
Involvement - As a partner, I contributed to creating detailed drawings and 3D models with precision, demonstrating strong technical skills and keen attention to detail, along with conducting site visits and inspections.
Prepared council and construction drawings, ensuring compliance with regulations and project requirements.
Participated in onsite progress meetings to monitor project developments, address challenges, and align with project goals.
prioritize tasks and meet project deadlines effectively.
Created 3D models to visually communicate design concepts and ensure client understanding and satisfaction.
Sub-urban living
Personalized House












