Involvement - Contributed to creating detailed drawings and 3D models with precision, demonstrating strong technical skills and keen attention to detail, along with conducting site visits and inspections.
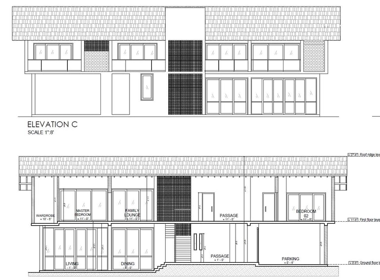
Produced council drawings in accordance with standard architectural practices.
Tropical Villa
Personalized House


